Будівництво будинку(достройка)

Альбом користувача sanya210806, створений 31 тра 2012.

img_4533_33407.png
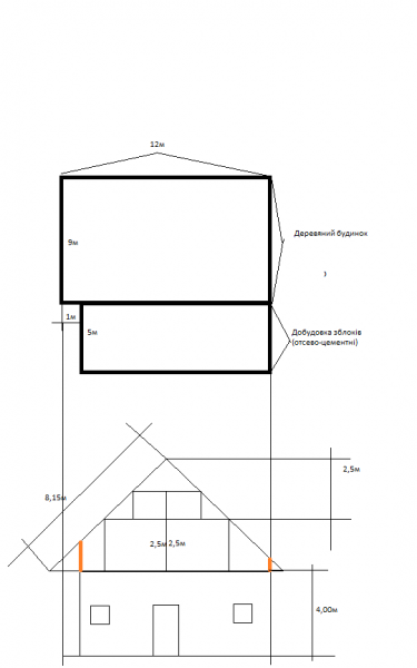
схема приблизна

Поділитися цією сторінкою