Нужна помощь профессионалов

Тема у розділі 'Твердотопливные котлы', створена користувачем igord, 13 лис 2016.

  1. Олександер_1

    Олександер_1 Заслужений майстер

    Повідомлення:
    2.208
    Симпатії:
    3.210
    Адреса:
    Між поділлям і поліссям
    Угу, не гріється. :-D 400 л СО від 23 гр до 55гр за 40 хвилин.
     
  2. stann

    stann Підмайстер

    Повідомлення:
    15
    Симпатії:
    2
    Это немного не то,вход воздуха , да сверху,а подача в зону горения она немного другая.
    Если мы говорим конечно об котле нижнего (бокового горения).
     
  3. Олександер_1

    Олександер_1 Заслужений майстер

    Повідомлення:
    2.208
    Симпатії:
    3.210
    Адреса:
    Між поділлям і поліссям
    Котел нижнього- бокового горіння. Повітря просто подаю приблизно 70% в шахту , 30 % під колосники. Щоб Вам було більш зрозуміло :
    termit151-1024x723.png
    Правда в мене котел по схемі 20 ки Кононенка
    Котел PEPS-08-20-1.jpg
     
  4. stann

    stann Підмайстер

    Повідомлення:
    15
    Симпатії:
    2
    Я немного о другом говорю
    вот к примеру. В чем проблема скажем в Вашем конструктиве.В любом режиме ,максимум,номинал или некий минимум ,подача идет под весь колосник ,нужно менять эту подачу.К сожалению что-то конкретнее сказать не могу ,мне нужно видеть сам конструктив и как топливо горит .
     

    Вкладення:

    • 7_1.jpg
      7_1.jpg
      Розмір файлу:
      136,5 КБ
      Переглядів:
      54
    Останнє редагування: 8 січ 2017
  5. Олександер_1

    Олександер_1 Заслужений майстер

    Повідомлення:
    2.208
    Симпатії:
    3.210
    Адреса:
    Між поділлям і поліссям
    Я схожу подачу повітря робив, правда трішки навпаки. Регулювання було на нижній дверці. В режимі стоп диміло через лючок у верхній дверці. У Вашому варіанті такого бути не повинно. Але на мою думку при закритій заслонці горіння буде продовжуватись?
     
  6. stann

    stann Підмайстер

    Повідомлення:
    15
    Симпатії:
    2
    Нет это не мой вариант,это одного немецкого котла. Но не в этом суть.
    Я много раз пытался подчинить горение в слое,но всякий раз спотыкался на отсуствие в некоторый нужный момент пламени, а без него ,дожечь что-то ,особенно на минимуме ,без вариантов.
    Поэтому я и искал способ управления слоем и в то же время и пламенем,сразу на выходе слоя.
    Вот смотрите (это не мой фильм) вент на 10% ,вокруг море воздуха но дымок есть...


    --- добавлено: 8 січ 2017 у 22:17 ---
    очень близко к тому что нужно ,выполненно в доработанном котле ИРЛЕХ,но опять же одно на схеме ,а в реальности оно по другому.

     

    Вкладення:

    Останнє редагування модератором: 16 січ 2017
  7. Олександер_1

    Олександер_1 Заслужений майстер

    Повідомлення:
    2.208
    Симпатії:
    3.210
    Адреса:
    Між поділлям і поліссям
    Я собі планую ставити ТА. Думаю тоді можливе більш-менш якісне горіння в шахтному котлі. А ці старт-стопи , тління більше ніж горіння щось мене не влаштовує.
    Якщо маєте, то дайте посилання на відео роботи Вашого котла.:)
    --- добавлено: 8 січ 2017 у 22:31 ---
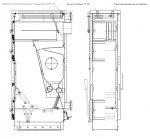
    Це схема Вашого котла?
     
    Останнє редагування модератором: 16 січ 2017
    Владимир В подобається це.
  8. stann

    stann Підмайстер

    Повідомлення:
    15
    Симпатії:
    2
    Установка ТА не такое простое дело как кажется.Вот мой товарищ ,устанавливает например такие вот котельные (фото ниже).
    Я же пока ТА не установил,так как не вижу в нем для себя особой надобности при непрерывной работе котла.В данное время я пользуюсь модифицированным котлом ОПОП Н650.https://www.forumhouse.ru/posts/7404076/ Видео в сети нет.
     

    Вкладення:

    • viadrus.jpg
      viadrus.jpg
      Розмір файлу:
      147,9 КБ
      Переглядів:
      57
    • opop h650.jpg
      opop h650.jpg
      Розмір файлу:
      112,2 КБ
      Переглядів:
      53
    Останнє редагування: 9 січ 2017
  9. Олександер_1

    Олександер_1 Заслужений майстер

    Повідомлення:
    2.208
    Симпатії:
    3.210
    Адреса:
    Між поділлям і поліссям
    Щось схоже на зустрічне горіння? Дровами палите?
     
  10. stann

    stann Підмайстер

    Повідомлення:
    15
    Симпатії:
    2
    Хорошие дрова у нас дороговаты,да и не найти их просто так. Топлю я в основном древесными и торфо брикетами.Я использую схожий принцип горения с встречным.
     

    Вкладення:

    Олександер_1 подобається це.

Поділитися цією сторінкою